43+ Denah Rumah Biasa 3 Kamar Paling Modern Dan Minimalis
Maret 12, 2020
0
Comments
Poin pembahasan 43+ Denah Rumah Biasa 3 Kamar Paling Modern Dan Minimalis adalah :
43+ Denah Rumah Biasa 3 Kamar Paling Modern Dan Minimalis memiliki rumah minimalis karakteristik menarik sampai kelihatan mewah dan modern akan kita berikan buat kamu secara free rancangan rumah minimalis kalian bisa tercipta dengan cepat. 43+ Denah Rumah Biasa 3 Kamar Paling Modern Dan Minimalis Model menarik dapat kalian buat kalau kita pintar dalam membuat kreativitas yang berkaitan dengan desain baik itu penataan segi model. Oleh dari itu diharap desain rumah minimalis yang akan kita bagikan berikut ini dapat memberikan tambahan ide untuk membuat rumah minimalis serta bisa memperingan kamu dalam membangun rumah minimalis impian kamu.

Gambar Desain Rumah 9x10 Tukang Desain Rumah Sumber : tukangdesainrumahku.blogspot.com

Denah Rumah Sederhana 3 Kamar Tidur Denah Rumah Sederhana Sumber : denahrumahsederhana3kamartidur.blogspot.com

Denah Rumah Idaman 3 Kamar Tidur Desain Rumah Modern Sumber : rumah.dapurindonesia.web.id

Contoh Desain Rumah Minimalis Ukuran 8 X 12 Contoh Hu Sumber : contohhu.blogspot.com

Menggambar Denah Rumah Sederhana 1 Lantai 3 Kamar Tidur Sumber : mentessobredotadas.blogspot.com

Denah Rumah 3 Kamar Ukuran 7x12 Sumber : sidesainrumahminimalis.blogspot.com
denah rumah 3 kamar ukuran 7x9, denah rumah 3 kamar tidur 1 mushola, gambar pondasi rumah minimalis 3 kamar, gambar pondasi rumah minimalis 3 kamar tidur, denah rumah 3 kamar ukuran 6x12, denah rumah minimalis beserta keterangannya, denah rumah 3 kamar tidur 1 mushola 1 garasi, desain rumah lengkap dengan ukurannya,

Denah Rumah Sederhana 3 Kamar Tidur Desain Rumah Sumber : rapi-rumahku.blogspot.com

Denah Rumah Minimalis 3 Kamar Tidur 1 Lantai Rumah Sumber : rumahminimalispro.wordpress.com

InfoMedia Digital Contoh Denah Rumah Sederhana Terpopuler Sumber : www.arissaifulloh.com

Denah Rumah Sederhana Minimalis Type 36 Desain Rumah Sumber : exposedesainrumah.blogspot.com

Denah Rumah 3 Kamar Ukuran 6x12 Terbaik dan Terbaru Sumber : id.pinterest.com

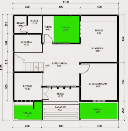
Denah rumah 3 kamar tidur 1 mushola 1 Desain Rumah Minimalis Sumber : livedesain.com

Gambar Desain Rumah 4 X 10 Meter Contoh U Sumber : contohu.blogspot.com

Hasil gambar untuk denah rumah 3 kamar tidur 1 mushola di Sumber : id.pinterest.com

50 Contoh Denah Rumah Kampung Homkonsep Sumber : homkonsep.blogspot.com
denah rumah 3 kamar ukuran 7x9, denah rumah 3 kamar tidur 1 mushola, gambar pondasi rumah minimalis 3 kamar, gambar pondasi rumah minimalis 3 kamar tidur, denah rumah 3 kamar ukuran 6x12, denah rumah minimalis beserta keterangannya, denah rumah 3 kamar tidur 1 mushola 1 garasi, desain rumah lengkap dengan ukurannya,
43+ Denah Rumah Biasa 3 Kamar Paling Modern Dan Minimalis memiliki rumah minimalis karakteristik menarik sampai kelihatan mewah dan modern akan kita berikan buat kamu secara free rancangan rumah minimalis kalian bisa tercipta dengan cepat. 43+ Denah Rumah Biasa 3 Kamar Paling Modern Dan Minimalis Model menarik dapat kalian buat kalau kita pintar dalam membuat kreativitas yang berkaitan dengan desain baik itu penataan segi model. Oleh dari itu diharap desain rumah minimalis yang akan kita bagikan berikut ini dapat memberikan tambahan ide untuk membuat rumah minimalis serta bisa memperingan kamu dalam membangun rumah minimalis impian kamu.

Gambar Desain Rumah 9x10 Tukang Desain Rumah Sumber : tukangdesainrumahku.blogspot.com
17 Gambar Denah Rumah Minimalis Keluarga 3 Kamar Sejasa com
05 07 2020 17 Inspirasi Denah Rumah Minimalis 3 Kamar Tidur Memiliki tiga tempat tidur bukan berarti Anda harus mengorbankan kenyamanan bersantai di ruang tamu atau keleluasaan memasak di dapur lho Dengan perencanaan denah rumah yang baik Anda akan tetap bisa lancar beraktivitas meski rumah minimalis Anda disemati 3 kamar tidur

Denah Rumah Sederhana 3 Kamar Tidur Denah Rumah Sederhana Sumber : denahrumahsederhana3kamartidur.blogspot.com
21 Sketsa Rumah Kamar 3 Terbaik Denah Rumah
04 10 2020 Mungkin kamu menyukai sketsa rumah kamar 3 Beberapa waktu yang lalu kami telah mengumpulkan foto foto untuk tambahan ide ide Anda kami harap Anda dapat terinspirasi dengan ini foto foto artistik Kami menyukai ini mungkin Anda juga Mungkin data berikut yang telah kami tambahkan juga Anda butuhkan Sebuah rancangan rencana desain rumah yang

Denah Rumah Idaman 3 Kamar Tidur Desain Rumah Modern Sumber : rumah.dapurindonesia.web.id
12 Denah Rumah 3 Kamar Minimalis 3D 2020
Denah rumah 3 kamar minimalis adalah pilihan yang cocok bagi mereka yang akan membangun rumah Susunan ruangan yang memiliki jumlah 3 kamar memang cocok untuk keluarga Terlebih lagi bagi mereka yang memiliki jumlah anggota keluarga lebih dari 3 orang maka pilihan denah inilah yang tepat saat mendesain rumah

Contoh Desain Rumah Minimalis Ukuran 8 X 12 Contoh Hu Sumber : contohhu.blogspot.com
Inspirasi Denah Rumah Mewah 1 Lantai 3 Kamar Tidur yang Elegan
Mari simak inspirasi denah rumah mewah 1 lantai 3 kamar tidur dibawah ini Dalam pembangunan sebuah rumah perencanaan denah rumah menjadi hal yang amat penting yang perlu diperhatikan dengan baik Hal ini dikarenakan denah rumah adalah gambar yang menjelaskan secara detail mengenai tata letak didalam rumah dan bangunan secara detail

Menggambar Denah Rumah Sederhana 1 Lantai 3 Kamar Tidur Sumber : mentessobredotadas.blogspot.com
9 Inspirasi Model Rumah Minimalis 3 Kamar Design Rumah
Denah Desain rumah minimalis 3 kamar Desain rumah minimalis pertama dengan tiga kamar yang berada pada sisi kiri Konsep rumah ini menyamping Bagian ruang tamu dari desain rumah ini berada di bagian tengah dan bagian dapur berada di sisi kanan Konsep desain rumah minimalis ini sangat menarik dan patut untuk kamu coba

Denah Rumah 3 Kamar Ukuran 7x12 Sumber : sidesainrumahminimalis.blogspot.com
30 Contoh Denah Rumah Minimalis Modern Inspiratif
Sebuah denah rumah nyaman dengan 3 kamar tidur Satu kamar tidur utama yang akan menghabiskan ruang cukup besar dengan kamar mandi dalam sementara lainnya cukup untuk dipan dan beberapa furniture Sebagaimana denah di atas kamar tidur biasa bisa diletakkan di dekat kamar mandi
denah rumah 3 kamar ukuran 7x9, denah rumah 3 kamar tidur 1 mushola, gambar pondasi rumah minimalis 3 kamar, gambar pondasi rumah minimalis 3 kamar tidur, denah rumah 3 kamar ukuran 6x12, denah rumah minimalis beserta keterangannya, denah rumah 3 kamar tidur 1 mushola 1 garasi, desain rumah lengkap dengan ukurannya,

Denah Rumah Sederhana 3 Kamar Tidur Desain Rumah Sumber : rapi-rumahku.blogspot.com
12 Denah Rumah Minimalis 2 Kamar Tidur
Sebelumnya kita telah membahas 13 Denah Rumah Sederhana 3 Kamar Tidur 2020 di artikel sebelumnya kita membahas denah rumah minimalis yang sederhana dengan tiga kamar tidur Di Indonesia karena memiliki lahan yang terbatas maka desain minimalis menjadi sangat berkembang

Denah Rumah Minimalis 3 Kamar Tidur 1 Lantai Rumah Sumber : rumahminimalispro.wordpress.com
Inspirasi Gambar Denah Rumah 3 Kamar Minimalis Informasi
30 07 2020 Inspirasi Gambar Denah Rumah 3 Kamar Minimali s Salah satu tipe desain yang lumayan tak lekang oleh waktu adalah tipe minimalis Untuk wujudkan rumah minimalis impianmu salah satu cara awal yaitu memutuskan gambar denah rumah minimalis yang tepat bagus pantas keperluan dan termasuk type minimalis demikian

InfoMedia Digital Contoh Denah Rumah Sederhana Terpopuler Sumber : www.arissaifulloh.com
33 Koleksi Desain Denah Rumah 3 Kamar Tidur Modern dan
05 12 2020 Selanjutnya denah rumah kamar ini juga mempunyai ukuran yang sejatinya bisa anda paskan dengan lahan yang tersedia disana Untuk denah rumah 3 kamar ukuran 7 9 pada dasarnya tidak ada ketentuan tersendiri semua bergantung pada konsep yang akan Anda realisasikan
Denah Rumah Sederhana Minimalis Type 36 Desain Rumah Sumber : exposedesainrumah.blogspot.com
24 Ide Denah Rumah 3 Kamar Tidur 1 Mushola 3d Untuk Kamu
21 06 2020 Berikut adalah beberapa gambar dari denah rumah 3 kamar tidur 1 mushola 3d Semoga beberapa ide ini galeri untuk memberikan bayangkan kepada Anda apakah gambar gambar ini adalah gambar luar biasa Oke anda bisa pilih ini Kami telah menambahkan informasi dari setiap gambar foto yang kita dapatkan termasuk informasi mengenai ukuran dan resolusi

Denah Rumah 3 Kamar Ukuran 6x12 Terbaik dan Terbaru Sumber : id.pinterest.com
Denah rumah 3 kamar tidur 1 mushola 1 Desain Rumah Minimalis Sumber : livedesain.com

Gambar Desain Rumah 4 X 10 Meter Contoh U Sumber : contohu.blogspot.com

Hasil gambar untuk denah rumah 3 kamar tidur 1 mushola di Sumber : id.pinterest.com

50 Contoh Denah Rumah Kampung Homkonsep Sumber : homkonsep.blogspot.com
0 Komentar